THE DEVELOPMENT OF STAGE MACHINERY IN THE DROTTNINGHOLM COURT THEATRE (1764-1766)
Daniel Fernández-Carracedo
Universidad de Valladolid
Silvia Cebrián Renedo
Universidad de Valladolid
DOI: 10.33732/ASRI.6882
.........................................
Recibido: (09 10 2025)
Aceptado: (03 11 2025)
.........................................
Cómo citar este artículo
Fernández-Carracedo, Daniel; Cebrián Renedo, Silvia (2025). La evolución de la maquinaria escénica en el Teatro Palaciego de Drottningholm (1764-1766). ASRI. Arte y Sociedad. Revista de investigación en Arte y Humanidades Digitales, (28), e6882.
Recuperado a partir de https://doi.org/10.33732/ASRI.6882
Resumen
El Teatro Palaciego de Drottningholm sintetiza las aspiraciones estéticas y técnicas del espectáculo cortesano de la segunda mitad del siglo XVIII. Su compleja maquinaria escénica, basada en el innovador cabestrante vertical e inspirada en modelos centroeuropeos, permitió transformar el espacio dramático con notable precisión y dinamismo. Concebido por Carl Fredrik Adelcrantz bajo el mecenazgo ilustrado de Lovisa Ulrika de Prusia, combinó riqueza espacial y esplendor mecánico para materializar la ilusión teatral total. Esta integración de arquitectura, pintura, música y movimiento refleja la culminación del barroco escenográfico y anticipa la modernidad del artificio. La técnica –ahora digital– se convierte en vehículo de emoción estética y lo real se confunde con lo ilusorio en una experiencia única.
Palabras clave
Maquinaria escénica, cabestrante vertical, trampantojo, espacio único, interacción entre apariencia y realidad.
Abstract
The Drottningholm Court Theatre is a prime example of the aesthetic and technical aspirations of courtly spectacle in the second half of the eighteenth century. Its sophisticated stage machinery, based on the innovative vertical capstan and inspired by Central European models, enabled the dramatic space to be transformed with remarkable precision and dynamism. Conceived by Carl Fredrik Adelcrantz under the patronage of Queen Lovisa Ulrika of Prussia, it combined spatial richness with mechanical splendour to create the total theatrical illusion. This integration of architecture, painting, music and movement represents the culmination of Baroque scenography while also anticipating the modernity of artifice. In the contemporary digital landscape, technique has evolved to serve as a conduit for aesthetic expression, seamlessly integrating reality with illusion to create a distinctive experience.
Keywords
Stage machinery, vertical capstan, trompe l’oeil, unique space, interaction between appearance and reality.
La maquinaria escénica del Teatro Palaciego de Drottningholm destaca por haber llegado intacta hasta nuestros días como uno de los ejemplos más avanzados de la segunda mitad del siglo XVIII. La única adaptación moderna es la iluminación eléctrica, incorporada para imitar la luz de las velas.
Su tecnología basada en cuerdas, poleas, cabestrantes y engranajes de madera sin contrapesos, ha permitido comprender el desarrollo y la diversidad de sus mecanismos protodigitales. Quizá el diseño recuerde las soluciones náuticas de la época, perfeccionadas por la expansión de las rutas comerciales. De hecho, el accionamiento de los distintos artefactos posibilita el cambio de decorados en segundos, con una agilidad comparable a las maniobras de un navío para aprovechar el viento.
Otra singularidad de este teatro es que sus artilugios originales siguen utilizándose en representaciones contemporáneas. Además de los dispositivos básicos – telón de embocadura, bastidores, bambalinas, telones de fondo, máquinas voladoras y de nubes así como dispositivos de iluminación regulables – conserva elementos técnicos complementarios que generan efectos sonoros, empleados como instrumentos musicales.1
Por ejemplo, las máquinas de tormenta, muy populares, recrean con realismo el estruendo del temporal (Figura 1). Para el silbido del viento, se usa un cilindro de listones de madera cubierto con tela que, accionado por una manivela, a diferentes velocidades produce sonidos variables de ventisca. El estruendo del trueno se imita rodando una bala de cañón o agitando una lámina metálica. También conserva la “caja de truenos”, un cofre estrecho de madera de tres metros de largo suspendido en el altillo de la tramoya y relleno de piedras redondeadas que traquetean de un lado a otro al ser volteadas. El efecto de la lluvia se consigue girando una rueda con guisantes secos.
Figura 1: Máquinas de tormenta y viento. (Kull, 1987, Lámina XII).

Igualmente, cuenta con efectos visuales que acompañan a las tempestades como el resplandor de los relámpagos, que se obtiene encendiendo entre los bastidores antorchas especiales con polvo de licopodio. Y para historias ambientadas en el mar, tiene la máquina de olas instalable al fondo del escenario, compuesta por cinco columnas salomónicas horizontales cuyo movimiento simula el aspecto ondulante del oleaje intenso.
Su escenario, de veinte metros de profundidad, amplía la sensación espacial y permite crear diferentes planos escénicos. Los decorados, concebidos en perspectiva cónica central, dirigen todas las líneas hacia un punto de fuga único.2 Con un número limitado de decorados, pueden evocarse exteriores como acantilados, playas, bosques, campamentos, plazas y calles; o interiores de cuevas, casas, palacios y templos; o el cielo, el limbo y el infierno, según lo exigiera la trama. Hoy en día se conservan quince decorados originales completos de los treinta iniciales.
El edificio destaca también por la sobriedad de su exterior y de su auditorio, en contraste con otros teatros reales europeos ricamente ornamentados. En Drottningholm se privilegió la amplitud del escenario y el despliegue mecánico frente al lujo decorativo. Esta elección refleja el contexto político sueco, marcado por la monarquía parlamentaria.
Al final de la Gran Guerra del Norte (1700-1721), tras la muerte de Karl XII en 1718 durante el conflicto, su hermana Ulrika Eleonora para acceder al trono se vio obligada a abolir el absolutismo impuesto por sus antecesores e instaurar el parlamentarismo. Por primera vez, la cámara de representantes de los distintos estamentos - la nobleza, el clero, la burguesía y el campesinado - configuró el presupuesto de la Corona y ejerció el poder ejecutivo, aunque el acceso a los altos cargos siguió siendo exclusivo de la nobleza. Este periodo se caracterizó por los enfrentamientos entre los partidos que conformaban el parlamento por el control del poder en detrimento de los derechos de los ciudadanos. A pesar de dicha inestabilidad, esta etapa se conoció como la “Edad de la Libertad” (1720-1772) y finalizó con el golpe de estado de Gustaf III para recuperar la autoridad real. De algún modo, Drottningholm devolvió el protagonismo a los monarcas de esa era en el ámbito cultural sin importar las limitaciones económicas reguladas por el Consejo del Reino, la máxima autoridad gubernamental. El espacio central del teatro lo ocuparon los asientos de la familia real y los motivos decorativos de los distintos elementos con referencias implícitas mediante la simbología y la mitología clásica.
En ese sentido, la gran aportación de este teatro al potenciarse la maquinaria, respecto a sus referencias alemanas, fue el perfeccionamiento del cabestrante vertical.3 Con un único movimiento se coordina el cambio de todos los bastidores laterales y se libera el centro de la tramoya. Situado junto al foso de la orquesta, este torno permite desplegar con libertad más mecanismos – como por ejemplo las trampillas y el montacargas soterrado o los columpios suspendidos entre las bambalinas – para la intervención de actores y decorados desde cualquier punto, ya fuese el foso o el techo, o entre bastidores. De igual modo, su configuración espacial facilita el acceso al proscenio y a la tramoya desde el auditorio y con espacial facilidad desde la plataforma destinada a los reyes.
El mecenazgo teatral en Suecia se fortaleció tras el matrimonio, en 1744, del príncipe heredero Adolf Fredrik con Lovisa Ulrika, hermana de Federico el Grande de Prusia. Como regalo de bodas, la pareja recibió la residencia estival de Drottningholm, situada a unos veinte kilómetros al oeste de Estocolmo. El palacio se convirtió pronto en el centro de numerosas actividades culturales promovidas por la corona, tanto antes como después del ascenso al trono del príncipe en 1751.
Las noticias que llegaban desde Prusia y Sajonia sobre teatros recién construidos en diversas cortes impresionaron a la futura reina, quien deseaba trasladar a Suecia su espíritu ilustrado, aún ligado al ideal absolutista.4 Entre 1753 y 1754 ordenó edificar un teatro independiente al noroeste del palacio, junto a los jardines, destinado a una compañía francesa que elevara el nivel de las producciones locales. El complejo incluyó viviendas para actores y sus familias, un amplio vestíbulo en la planta baja y, en el nivel superior, una antesala calefactada previa al palco real. El auditorio, de dimensiones reducidas, contaba con bancos en el patio de butacas y palcos curvos en el segundo nivel. Delante del escenario se abría un foso profundo con amplias escaleras laterales de acceso. La fachada principal, orientada al este, presidía la plaza de acceso al palacio utilizada por caballos y carruajes que llegaban desde Estocolmo.
Por aquel entonces, Carl Fredrik Adelcrantz ya ejercía como arquitecto de la corte, aunque en Drottningholm la reina confió la dirección a George Greggenhofer, colaborador de Giuseppe Galli da Bibbiena, al servicio de su hermano en Berlín (Figura 2).5 Esta elección explicaría la preferencia por construir un edificio autónomo, distinguible del resto de instalaciones, en lugar de remodelar o ampliar las dependencias del palacio.
Figura 2: Secciones y planta del Teatro Palaciego de Drottningholm de 1753 por George Greggenhofer, 1754. (Donnelly, 1984, p. 333).

En 1749, Galli da Bibbiena había diseñado un pequeño teatro cortesano exento, presentado en 1753 al elector de Sajonia.6 El proyecto incorporaba una amplia escalera en lugar de vestíbulo, un palco real y gradas curvas, rasgos característicos de otros trabajos de la familia Bibbiena. Al poco tiempo, Giuseppe abandonó Dresde para incorporarse al servicio de Federico el Grande de Prusia.
Ante la inminente llegada de la compañía francesa contratada para el verano de 1753, la reina ordenó adaptar las caballerizas del Palacio de Ulriksdal, residencia predilecta de Adolf Fredrik al norte de Estocolmo, hasta disponer del nuevo espacio en Drottningholm. Adelcrantz se encargó de la reforma (Figura 3).7 El lugar, alargado y estrecho, se dividió a partes iguales entre público y escenario. Carecía de asientos fijos, y dos escaleras curvas conducían al escenario elevado con bastidores para decorados. Su organización espacial anticipó decisiones aplicadas más tarde en Drottningholm por el arquitecto real.
Figura 3: Planta de remodelación de las caballerizas en teatro del Palacio de Ulriksdal (1753) por Carl Fredrik Adelcrantz, 1783. https://weburn.kb.se/metadata/796/digbild_1942796.htm

Hacia 1755, Adelcrantz remodeló el primer teatro de Drottningholm e ideó tres proyectos adicionales que no llegaron a ejecutarse (Figura 4). La noche del 25 de agosto de 1762, una vela colocada junto a un recipiente con trementina provocó un incendio que lo destruyó por completo.
Figura 4: Planta de remodelación del Teatro Palaciego de Drottningholm de 1755 por Carl Fredrik Adelcrantz, 1762. (Donnelly, 1984, p. 333).

Pese a la desgracia, la reina Lovisa Ulrika mantuvo las representaciones en el gran salón del palacio y encargó a Adelcrantz de inmediato el trazado de un nuevo teatro, que duplicaría la capacidad del anterior hasta alcanzar las cuatrocientas localidades (Figura 5). El proceso, marcado por la austeridad y la vigilancia del gasto, se prolongó dos años.
Figura 5: Planta del Teatro Palaciego de Drottningholm de Carl Fredrik Adelcrantz, 1764-1766. (Beijer, 1972, lámina 7).

Finalizado en 1766, el edificio apostó por la maquinaria escénica como principal elemento de magnificencia. Por deseo de la reina, Adelcrantz empleó todos los recursos locales y tradicionales que abaratasen las obras sin pérdida de esplendor en lo escenográfico. Los muros se ejecutaron con estructura de madera rellena de piedra, salvo las chimeneas y el arco del proscenio que se levantaron en ladrillo revestido. Es más, el propio arquitecto se vio obligado a financiar parte de los trabajos pendientes con sus propios honorarios para poder concluir. El objetivo era lograr una apariencia noble mediante materiales modestos.8 Los ingenios de la tramoya superarían con creces la ostentación decorativa de otros teatros cortesanos, permitiendo competir con las grandes óperas europeas, aunque sólo fuese por la técnica escenográfica.
La deuda nunca fue saldada, y en compensación la reina cedió al arquitecto la habitación real en el nuevo edificio. Destacaban sus detalles, como las balaustradas en papel maché, los cortinajes simulados y revestidos con pan de oro o los trampantojos del techo, que unificaban visualmente el auditorio.
Exteriormente, el teatro no se diferenciaba del resto del palacio, lo que aumentaba el efecto de sorpresa nada más ingresar en su interior.
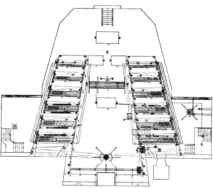
El edificio, de planta rectangular alargada, de unos cincuenta y cuatro metros de largo por veinticuatro de ancho, se dividía por igual entre auditorio y escenario. Adelcrantz situó el proscenio en el centro geométrico del conjunto, creando una simetría especular entre actores y espectadores. Repitió el orden corintio del frente del escenario en las pilastras laterales del auditorio con el mismo entablamento con ménsulas de remate y, reflejó el proscenio en el fondo de la sala mediante un telón como el de la embocadura, como si existiera un segundo arco escénico. Este artificio, además de espacial, servía para distinguir durante los intermedios entre realeza, alta nobleza y baja nobleza así como burguesía. La contraposición de inclinaciones entre sala y escenario también era simétrica respecto a la posición central de los reyes (Figura 6).
Figura 6: Auditorio desde el fondo del escenario. Fotografía de Lennart af Petersens y Beata Bergström (1980). (Hilleström y af Petersens, 1980, p. 61).

El arquitecto dispuso un foso orquestal seguido por un área nivelada con hileras de bancos y sillas reservadas a la familia real, y dos secciones posteriores en pendiente con bancos corridos. Los asientos del rey y la reina formaban parte del espacio escénico. En el telón de boca, la reina Lovisa Ulrika aparecía representada como Minerva sosteniendo su emblema. La simbología monárquica se extendía a numerosos detalles decorativos.
A ambos lados de la primera sección del auditorio se añadieron en altura dos palcos abiertos y, en las esquinas, dos balcones enrejados destinados a los monarcas cuando deseaban asistir sin ser vistos. Grandes ménsulas bajo los palcos volados y paneles ornamentales con tonos azules, rosas, grises y amarillos completaban la ornamentación. La iluminación mantenía una intensidad equilibrada entre sala y escenario.
El teatro funcionó además como residencia para artistas, trabajadores y familiares. Adelcrantz adaptó las dependencias anexas al auditorio para alojar hasta ciento cincuenta personas en veintidós dormitorios y camerinos distribuidos entre el sótano y la planta superior. Las habitaciones con ventanas que daban al palacio se reservarían a los altos funcionarios de la corte. A continuación del escenario se situaba el comedor y, en el nivel inferior comunicado por escaleras, una gran cocina y un almacén de leña. El vestíbulo del edificio serían los jardines de palacio desde donde cada espectador accedería a cada reservado según su posición en la corte. El acceso de la baja nobleza y de la burguesía sería directo al auditorio teniendo que adelantar la entrada y esperar a la salida del resto de la comitiva.
En 1777, Gustaf III —conocido como el “Rey del Teatro”— adquirió el inmueble a su madre viuda, disolvió la compañía francesa y emprendió diversas reformas. La más significativa fue la adición, en 1791, de un pabellón norte abierto al jardín, diseñado por el escenógrafo francés Louis-Jean Desprez. Originalmente llamado Salon pour les Festins et les Ballets, pasó a conocerse en el siglo XIX como Sala de Desayunos, al destinarse a la primera comida del día de los sirvientes y campesinos de las granjas próximas.9
La nueva estancia de grandes dimensiones, abovedada y luminosa, contrastaba con las otras partes del teatro en penumbra. Desde esta galería, además de entrar y salir, el rey podía contemplar el jardín inglés a través de sus altas ventanas. Mientras el teatro representaba simbólicamente un espacio cerrado y centrado en la figura monárquica, esta pieza anexa se abría al paisaje y a la naturaleza exterior.
Gustaf III destacó como dramaturgo, actuando ocasionalmente como intérprete, productor y director artístico. Escribió obras teatrales y libretos en sueco inspirados en la historia nacional, fundó la Real Academia de la Música y fomentó la producción de óperas en sueco.10 Bajo su impulso, el teatro de Drottningholm vivió una etapa de esplendor, especialmente en 1786, cuando se representaron más de ochenta obras de teatro, óperas y ballets.
Tras su asesinato en 1792, la actividad teatral decayó. Su sucesor, Gustaf IV Adolf, mostró escaso interés por las artes escénicas, y la Ópera de Estocolmo asumió las representaciones públicas. Aunque el teatro se cerró formalmente veinte años después, siguió utilizándose periódicamente a lo largo del siglo XIX para distintas representaciones. Los camerinos albergaron a la guardia y algunas dependencias sirvieron de vivienda para los tutores de los niños reales. Desde 1898, ciertas salas se destinaron a conciertos y actos religiosos, y el edificio funcionó también como taller, almacén y granero.
Paradójicamente, el uso continuo e intermitente favoreció su conservación, pues la ventilación constante evitó la humedad y las plagas de hongos. Gracias a ello, el teatro y su maquinaria permanecieron prácticamente intactos hasta que el historiador Agne Beijer reconoció su valor y dirigió las labores de restauración entre 1921 y 1922.11
Figura 7: Cabestrante vertical (Autor Desconocido) (Sauter y Wiles, 2014, p. 32).

A comienzos de la década de los setenta del siglo pasado, Agne Beijer publicó un artículo sobre los dibujos teatrales incluidos en el diario de viaje del maestro de obras de palacio, Georg Fröman. Dicho cuaderno, elaborado durante su recorrido por Dresde y Viena en 1755, coincidió con el encargo a Carl Fredrik Adelcrantz de reconstruir el Teatro de Drottningholm, construido según las trazas de George Greggenhofer.12
En dicho artículo, editado en 1974 por la compañía alemana Erich Schmidt, Beijer subrayó la relevancia de Fröman en la configuración de los espacios escénicos suecos durante la segunda mitad del siglo XVIII.
Sin embargo, Beijer no analizó el alcance del material recogido por Fröman, ni su influencia directa en la construcción de la maquinaria escénica del Teatro del Palacio de Drottningholm entre 1764 y 1766. Según el dramaturgo Per Simon Edström, discípulo de Beijer, esta omisión se explica por la fidelidad del historiador a su propia hipótesis sobre la autoría del sistema escénico.13 Beijer atribuyó el diseño al desconocido autor italiano Donato Stopani, basándose en un recibo de pago por elementos decorativos realizados para la boda del príncipe heredero en octubre de 1766. Tal argumento, no obstante, resulta débil al no vincularse directamente con los artefactos de la tramoya y no haber más aclaraciones en más documentos gráficos.14
Sus viajes, su experiencia como maestro de obras en los edificios de la corona destinados a la ópera y, sobre todo, la información recopilada sobre la maquinaria teatral centroeuropea resultaron decisivos para el desarrollo del nuevo teatro de la residencia estival de Lovisa Ulrika de Prusia. Es, por tanto, fundamental reconsiderar hasta qué punto los dibujos reunidos por Fröman constituyeron la base de la maquinaria del Teatro de Drottningholm. Beijer sostuvo en su artículo que aquellas ilustraciones no requerían mayor explicación, pues las diferencias entre las grandes maquinarias continentales se reducían a detalles menores. Lamentablemente, su falta de análisis técnico en profundidad de los esquemas de Fröman revela una escasa comprensión práctica de estos sistemas.
En efecto, la diferencia entre el accionamiento de la maquinaria escénica de Drottningholm y el de los modelos italianos y franceses de los siglos XVI y XVII —empleados hasta entonces de igual modo en Suecia— era notable. Las máquinas de decorado previas se accionaban mediante un eje horizontal bajo el escenario, al que se unían transversalmente las cuerdas de los carros de los bastidores. La primera versión del teatro para la reina Lovisa Ulrika, diseñada por Greggenhofer y destruida por un incendio el 25 de agosto de 1762, respondía a este sistema.
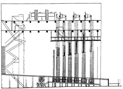
El nuevo teatro, construido entre 1764 y 1766, introdujo un mecanismo basado en seis pares de bastidores móviles a ambos lados del escenario, accionados por un eje motriz vertical. Este se conectaba a dos cuerdas que recorrían los laterales exteriores de los carros del decorado abocinado: las cuatro primeras parejas contenían cuatro bastidores cada una, la quinta tres y la sexta dos. El sistema comprendía cuarenta y ocho sogas con poleas, unidas por un extremo a las líneas de tracción, y por el otro, a anillas metálicas. Al girar el cabestrante, las sogas tiraban simultáneamente de un conjunto de bastidores hacia el escenario mientras retiraban el otro, evitando la maraña de cuerdas del modelo anterior y liberando el espacio inferior para trampillas, montacargas y escaleras de acceso al escenario.
El eje vertical podía ser accionado por varias personas, al modo de un cabrestante náutico. Cada bastidor se deslizaba sobre raíles de madera africana aceitosa, que reducían el ruido. Durante los intermedios, los tramoyistas enganchaban los nuevos bastidores y preparaban los cambios de escena. Además, el mecanismo de Drottningholm mejoró el sistema de retirada de los carros de decorado: en lugar de emplear poleas de inversión, las cuerdas conectaban directamente el carro con el cabestrante, optimizando la relación entre la longitud de las palancas y el diámetro del eje. Aunque el mayor número de poleas aumentaba la fricción, esta se compensaba con la posibilidad de emplear más operadores para girar el cabestrante.
Este tipo de eje vertical era desconocido en Suecia. Fröman regresó en 1756 con dos dibujos de maquinarias que utilizaban ese principio. Uno procedía del pequeño teatro del conde Heinrich von Brühl en Dresde, donde el eje bajo el escenario accionaba tres pares de carros mediante cuerdas cruzadas.15 El otro representaba la maquinaria del Gran Teatro de la Ópera Real del Palacio Zwinger de Dresde, dibujada en agosto de 1755 (Figura 8), con un eje vertical y dos cuerdas motrices fijas que dejaban libre el espacio central soterrado. Este modelo coincide en casi todos los detalles con el instalado en Drottningholm entre 1764 y 1766, salvo por la ubicación del eje. En Dresde se situaba debajo de los telones de fondo, mientras que en Drottningholm se colocó junto al foso de la orquesta.
Figura 8: Máquina para el cambio de decorados del Teatro de la Ópera Real del Palacio de Zwinger en Dresde. Georg Fröman, agosto de 1755. Dibujo. (Beijer, 1975, p. 88) (Edström, 1999, p. 105).

La configuración del Gran Teatro de la Ópera Real del Palacio Zwinger —erigido para el Elector de Sajonia, Friedrich August II— derivaba de la reforma del escenario y la ampliación del auditorio, realizadas entre 1748 y 1750 bajo la dirección del escenógrafo e ingeniero Giuseppe Galli da Bibbiena, con Christian Gottlob Reuss como maestro maquinista (Figura 9). El edificio, concebido originalmente por Matthäus Daniel Pöppelmann y decorado por los arquitectos venecianos Alessandro y Giramolo Mauro entre 1718 y 1719, había sido modificado en 1738 por Andrea Zucchi, al menos el escenario. Su exterior carecía de ornamento por ubicarse encajado entre otras construcciones, el esfuerzo creativo se concentraba en el auditorio y en el escenario.
Figura 9: Instalación escénica del Teatro de la Ópera Real del Palacio de Zwinger en Dresde. Christian Gottlob Reuss, Maquinista Teatral del Rey [Elector de Sajonia]. (1749). Dibujo. (Edström, 1999, p. 105).

Durante su viaje, Fröman conoció a Galli da Bibbiena como escenógrafo de la Ópera Real Unter den Linden de Berlín, proyectada por Georg Wenzeslaus von Knobelsdorff, y en Dresde estableció una estrecha relación con Reuss, quien le facilitó varios dibujos técnicos que pudo copiar.
Según Per Simon Edström, los diseños de Christian Gottlob Reuss constituyeron la base de los bocetos empleados para construir la maquinaria escénica de Drottningholm en 1766 (Figura 10). Y con toda probabilidad, el responsable de trasladar este conocimiento fue el propio maestro de obras Georg Fröman a partir de sus diarios de viaje.
Figura 10: Planta de la maquinaria escénica del Teatro Palaciego de Drottningholm. (https://www.theatre-architecture.eu/en/db/?theatreId=381&detail=attachement&page=2#att).

El Teatro Cortesano de Drottningholm marcó un hito histórico en la técnica escenográfica vinculada a la arquitectura y pintura del siglo XVIII. Las limitaciones presupuestarias concentraron la capacidad de asombro en los dispositivos escénicos, en los efectos sonoros y en los luminosos, concebidos para emocionar al espectador como una auténtica máquina de sensaciones. Este espacio dinámico y artificioso, activo sólo durante los periodos estivales, sincronizaba sus mecanismos sobre el escenario para ofrecer la experiencia global de entretenimiento más audaz de su época (Figura 11).
Figura 11: Máquina para cambio de escenas. (Kull, 1987, Lámina I).

El estudio del cabestrante vertical del Gran Teatro de la Ópera Real del Palacio Zwinger de Dresde, ejecutado por Christian Gottlob Reuss a partir del diseño de Giuseppe Galli da Bibbiena, enriqueció la fastuosidad de la tramoya palaciega sueca. A esta evolución se sumaron la nueva posición de este torno vertical en el foso, junto a la orquesta, y el abocinado del decorado, que redujo la longitud de las transmisiones y el número de uniones. Por encargo de la reina Lovisa Ulrika, el maestro de obras y viajero Georg Fröman, contribuyó a que Carl Fredrik Adelcrantz incorporara estos avances a tiempo en el proyecto definitivo. Dichas innovaciones no habían sido consideradas en la primera propuesta, pese a que esta fue trazada por un colaborador de Bibbiena enviado desde la corte prusiana.
Así mismo, la continuidad entre el decorado y las paredes del auditorio; unido a las proporciones similares a un lado y a otro del proscenio, facilitaron a los espectadores también actuar por momentos. En ocasiones, miembros de la corte -incluida la familia real- aparecían en escena, lo que permite interpretar el teatro del siglo XVIII como la prolongación natural de la vida cortesana. Hoy, sin embargo, ocurre lo inverso: el universo virtual de la representación se expande hasta alcanzar la realidad del espectador.
Del mismo modo, resulta paradójico que esta tramoya, rica en conceptos y técnicas coexistiera con otros procedimientos escénicos como los decorados a la palais à volonté de la tragedia francesa, basados en estructuras fijas y sobrias. Curiosamente, estos recursos tan neutros siguen presentes en producciones reconocidas ahora. Lo que constata la falta de avances durante dos siglos que lo digital ha venido a paliar cuando la escena no puede ser tan abstracta.16
Los vigentes medios electrónicos devuelven protagonismo a la tecnología, y el redescubrimiento de Drottningholm nos sume en plena actualidad. La complejidad del mundo contemporáneo replantea los límites donde lo artificial se confunde con lo real. Algo que estos artilugios insinúan, pero no aspiran a sustituir, y esta era, y es su auténtica magia, la sutil interacción entre apariencia y realidad, entre las dos y las tres dimensiones.
Andersson, H. O., y Bedoire, F. (Eds.) (1986). Svensk arkitektur, 1640-1970 (pp. 72-75). Estocolmo: Byggförlaget.
Beijer, A. (1937). Slottsteatrarna på Drottningholm och Gripsholm. Estocolmo: Lindfors Bokförlag.
Beijer, A. (1972). Court theatres of Drottningholm and Gripsholm. Nueva York: B. Blom
Beijer, A. (1974). Theaterzeichnungen im Reisejournal des Schloßbaumeisters Georg Fröman von seiner Reise nach Dresden und Wien im Jahre 1755. En: H. A. Frenzel, R. Badenhausen y H. Zielske (Eds.), Bühnenformen, Bühnenräume, Bühnendekorationen: Beiträge zur Entwicklung des Spielorts (pp. 77-107). Berlín: Erich Schmidt Verlag. En Uppsala universitetsbibliotek. (1977). Acta Bibliothecae R. Universitatis Upsaliensis (Vol. XX, pp. 77-107). Uppsala: Almquist & Wiksell.
Beijer, A. (1981). Drottningholms slottsteater på Lovisa Ulrikas och Gustaf III:s tid (pp. 296–298). Estocolmo: LiberFörlag.
Donnelly, M. (1984). Theaters in the Courts of Denmark and Sweden from Frederik II to Gustaf III. Journal of the Society of Architectural Historians, 43(4), 328-340.
Edström, P. S. (1993). The stage machinery at Drottningholm Theatre. En: C. Dymling (Ed.), Drottningholm Court Theatre: its advent, fate and preservation (pp. 74-114). Estocolmo: Byggförlaget.
Edström, P. S. (1999). Der deutsche Maschinenmeister Christian Gottlob Reuss und die Bühnenmaschinerie des Drottningholmer Schloßtheaters. ICOMOS – Hefte des Deutschen Nationalkomitees, 31, 104-105. https://doi.org/10.11588/ih.1999.0.21210
Fogelmarck, S. (1957). Carl Fredrik Adelcrantz, arkitekt. Estocolmo: Almqvist & Wiksell.
Harvey, A.-Ch. H. (2006). ‘Vacker som faux’ –The Drottningholm Theatre Aesthetic. TijdSchrift voor Skandinavistiek, 27(2), 27-53.
Hidemark, O., Edström, P., y Schyberg, B. (1993). Drottningholms Slottsteater. Dess tillkomst, öden och bevarande. Estocolmo: Byggförlaget.
Hilleström, G., y Af Petersens, L. (1980). Drottnigholmsteatern förr och nu. Estocolmo: Bokförlaget Natur och Kultur.
Kubalcik, S. (2004). Renaissance and baroque stage technology and its meaning for today’s theatre [Tesis]. Edith Cowan University. https://ro.ecu.edu.au/theses/792
Kull, G. (1987). Drottningholms Slottsteater Scenmaskineriet. Härnösand: Bjärtrå Teatertekniska.
Lewenhaupt, I. (2021). Musik und Theater in der Sommerresidenz Drottningholm (1744–1791). En: S. Leopold y B. Pelker (Eds.), Fürstliches Arkadien: Sommerresidenzen im 18. Jahrhundert (pp. 175–189). Heidelberg: Heidelberg University Publishing (Schriften zur Südwestdeutschen Hofmusik, 5). https://doi.org/10.17885/heiup.778.c10454
Menta, E. (2023). How the Teatro Olimpico and the Drottingholm Slottsteater ‘Perform’ Their Pasts. En: Theatre Research International, 48(2), pp. 195-219. https://doi.org/10.1017/S0307883323000081
Mohler, F. (1999). Survival of the mechanized flat wing scene change: Court Theatres of Gripsholm, Cesky Krumlov and Drottningholm. Theatre Design & Technology, 35(1), 46-56.
Monjo Roca, P. (2020). El teatre de Drottningholm: tecnologia escènica i arquitectura [TFG]. Universitat Politècnica de Catalunya. https://upcommons.upc.edu/entities/publication/902d3d3c-7d0b-4d53-96d3-513f61261fb5
Sauter, W. y Wiles, D. (2014). The Theatre of Drottningholm – Then and now. Performance between the 18th and 21st centuries. Estocolmo: Acta Universitatis Stockholmiensis.
Página web del Teatro Palaciego de Drottningholm: https://dtm.se/fr-skolor
Página web del Instituto de Historia y Folclore Sajón: https://saebi.isgv.de/biografie/Giuseppe_Galli-Bibiena_(1696-1757)
Página web Teatro y Arquitectura https://www.theatre-architecture.eu/db.html

Daniel Fernández-Carracedo
es doctor arquitecto con Mención Internacional por la Universidad Politécnica de Madrid (2016). Su tesis “Peter Celsing en el complejo de Sergels torg. La Casa de Cultura de Estocolmo” fue galardonada con el Premio Extraordinario (2018).
Profesor Asociado de Proyectos Arquitectónicos en la Escuela de Arquitectura de Valladolid, anteriormente lo ha sido en las de Zaragoza y Toledo. Guest Critic en la NTNU Trondheim (2017), Visiting Professor en la KTH Stockholm (2011), Secretario de la Cátedra Cerámica Hispalyt-UPM (2006-2008) y Becario de la Sección de Proyectos Arquitectónicos de la Universidad de Valladolid (2004-2005). daniel.fernandez-carracedo@uva.es

Silvia Cebrián Renedo
es doctora arquitecta por la Universidad de Valladolid (2016) con la tesis “Fernando Távora. El camino hacia la nueva modernidad portuguesa”. Premio Extraordinario Fin de Carrera de la promoción 2007-2008. Posgrado de “Especialista en Planificación Urbana” del Instituto de Urbanística de la Universidad de Valladolid. Desde 2008 es Arquitecta del Ayuntamiento de Valladolid.
Actualmente, Directora del Servicio de Ocupación de Vía Pública del Área de Tráfico y Movilidad del Ayuntamiento de Valladolid. Profesora Asociada de Composición Arquitectónica en la Escuela de Arquitectura de Valladolid. Pertenece al Grupo de Investigación Arquitectura y Cine. silvia.cebrian@uva.es
_______________________________
1 (Hidemark et al., 1993, pp. 74-113), (Monjo Roca, 2020, pp. 26-45, 60-77).
2 Cuando el Teatro de Drottningholm abrió sus puertas, la perspectiva de punto único ya había sido reemplazada en los principales teatros de ópera de Italia y Francia por la scena per angolo, es decir, la perspectiva con puntos de fuga laterales, o incluso, por la de doble punto de fuga. Desarrollada a comienzos del siglo XVIII por Ferdinando Maria Galli da Bibbiena –padre de Giuseppe Galli da Bibbiena, mencionado más adelante-, esta técnica, junto con el uso creciente de formas curvilíneas y de la escala monumental, originó una estética barroca inconfundible, fastuosa y asimétrica. Ninguna de estas características, sin embargo, puede aplicarse al de Drottningholm. (Menta, 2023, p. 201).
3 (Kubalcik, 2004, p. 55).
4 Educada en la corte prusiana de Berlín, Lovisa Ulrika había sido formada en el gusto francés y en el aprecio por la cultura clásica, la música y el teatro. Ya como consorte, impulsó las diversiones cortesanas y aspiró a transformar Drottningholm en un palacio comparable al de Charlottenburg o Rheinsberg. Su deseo de competir con su hermano Federico, monarca absolutista, respondía al propósito de consolidar su propio poder. La reina aceptó con dificultad el papel limitado de la monarquía en Suecia, por lo que intervino activamente en política para restablecer el anterior régimen. Con ese objetivo, intentó financiar el golpe de Estado de 1762 empeñando las joyas de la corona. Ordenó sustituir los cuarenta y cuatro grandes brillantes por cristales de roca para venderlos en el extranjero. Sin embargo, la conspiración fracasó nada más comenzar. Las joyas regresaron a Suecia, la corona recuperó su estado original, y este episodio resultó incómodo para la familia real. Fuente: https://dtm.se/fr-skolor
5 (Andersson y Bedoire, 1986, pp. 72-75).
6 https://saebi.isgv.de/biografie/Giuseppe_Galli-Bibiena_(1696-1757)
7 (Fogelmarck, 1957, p. 289)
8 (Beijer, 1937, pp. 11, 152, 154, 192), (Harvey, 2006, pp. 27- 53).
9 (Harvey, 2006, pp. 35, 48)
10 (Lewenhaupt, 2021, pp. 175–189).
11 (Beijer, 1981, pp. 296–298).
12 (Beijer, 1974, pp. 77-107).
13 (Edström, 1993, pp. 74-114).
14 (Frank Mohler, 1999, p. 53).
15 Primer ministro del Elector de Sajonia.
16 (Menta, 2023, p. 212).